PROPERTY DETAILS
PROPERTY DETAILS
茅ヶ崎市小和田1丁目
中古一戸建て
SOLD OUT
SOLD OUT
PICKUP POINT
注目ポイント
PICKUP POINT
- 即入居可能
令和3年8月内、外装リフォーム完了しました!
南側のバルコニーには、南西道路からの陽射しがたっぷり入り、開放的です。
新規外構やリビング横にウッドデッキも設置しました。
■辻堂駅まで徒歩圏の閑静な住宅街に立地しています。
■水回りも全て新設して、白を基調にした明るい内装に仕上げています。
■カースペース2台分(車種による)サイクルスペースもあります。
■各部屋にクローゼット、階段下、屋根裏収納もあり、収納スペースが充実しています。
南側のバルコニーには、南西道路からの陽射しがたっぷり入り、開放的です。
新規外構やリビング横にウッドデッキも設置しました。
■辻堂駅まで徒歩圏の閑静な住宅街に立地しています。
■水回りも全て新設して、白を基調にした明るい内装に仕上げています。
■カースペース2台分(車種による)サイクルスペースもあります。
■各部屋にクローゼット、階段下、屋根裏収納もあり、収納スペースが充実しています。
PROPERTY
OVERVIEW
物件概要
PROPERTY
OVERVIEW
OVERVIEW
| 所在地 | 茅ヶ崎市小和田1丁目 | ||
|---|---|---|---|
| 交通 | JR東海道本線「辻堂」駅 徒歩20分 | ||
| 価格 | SOLD OUT | ||
| 物件番号 | 164 | 物件種別 | 中古一戸建て |
| 建物名称 | リノベーション小和田 | 土地面積 | 100.96㎡ (公簿) |
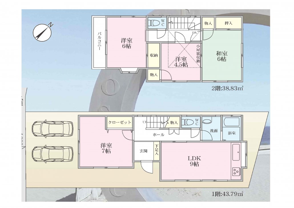
| 建物面積 | 82.62㎡ | 間取 | 4LDK |
| 建物構造 | 木造 2階建 | 完成 | 1988年9月築 |
| 接道状況 | 南西 4.00M道路に5.90M接道 | 土地権利 | 所有権 |
| 都市計画 | 市街化区域 | 地目 | 宅地 |
| 用途地域 | 第一種中高層住専 | 建ぺい率 | 60% |
| 容積率 | 200% | 現況 | 空家 |
| 駐車場 | 2台 | 引渡し時期 | 即入居可 |
| 引渡し条件 | 現況渡し | 取引態様 | 媒介 |
| 学区 | 松林小学校 松林中学校 |
||
ACCESS MAP
アクセスマップ
ACCESS MAP
茅ヶ崎市小和田1丁目/
中古一戸建ての物件詳細
中古一戸建ての物件詳細















