PROPERTY DETAILS
PROPERTY DETAILS
藤沢市鵠沼海岸5丁目
土地条件付き
SOLD OUT
SOLD OUT
PICKUP POINT
注目ポイント
PICKUP POINT
◆リバーサイドの景色と南西角地の陽当たりを現地でご確認ください。
◆北側も隣地通路のため3方角地のような開放感です。
◆海まで徒歩8分、マリンスポーツを満喫できます。
◆引地川沿いの気持ち良い立地は、ランニングやペットの散歩楽しめる住環境が魅力です。
◆コンパクトながらフリープランで建築できます。
◆スーパーやコンビニ、ドラッグストアも徒歩5分圏内あります。
◆北側も隣地通路のため3方角地のような開放感です。
◆海まで徒歩8分、マリンスポーツを満喫できます。
◆引地川沿いの気持ち良い立地は、ランニングやペットの散歩楽しめる住環境が魅力です。
◆コンパクトながらフリープランで建築できます。
◆スーパーやコンビニ、ドラッグストアも徒歩5分圏内あります。
PROPERTY
OVERVIEW
物件概要
PROPERTY
OVERVIEW
OVERVIEW
| 所在地 | 藤沢市鵠沼海岸5丁目4-31 | ||
|---|---|---|---|
| 交通 | 小田急江ノ島線「鵠沼海岸」駅 徒歩14分 | ||
| 価格 | SOLD OUT | ||
| 物件番号 | 170 | 物件種別 | 土地条件付き |
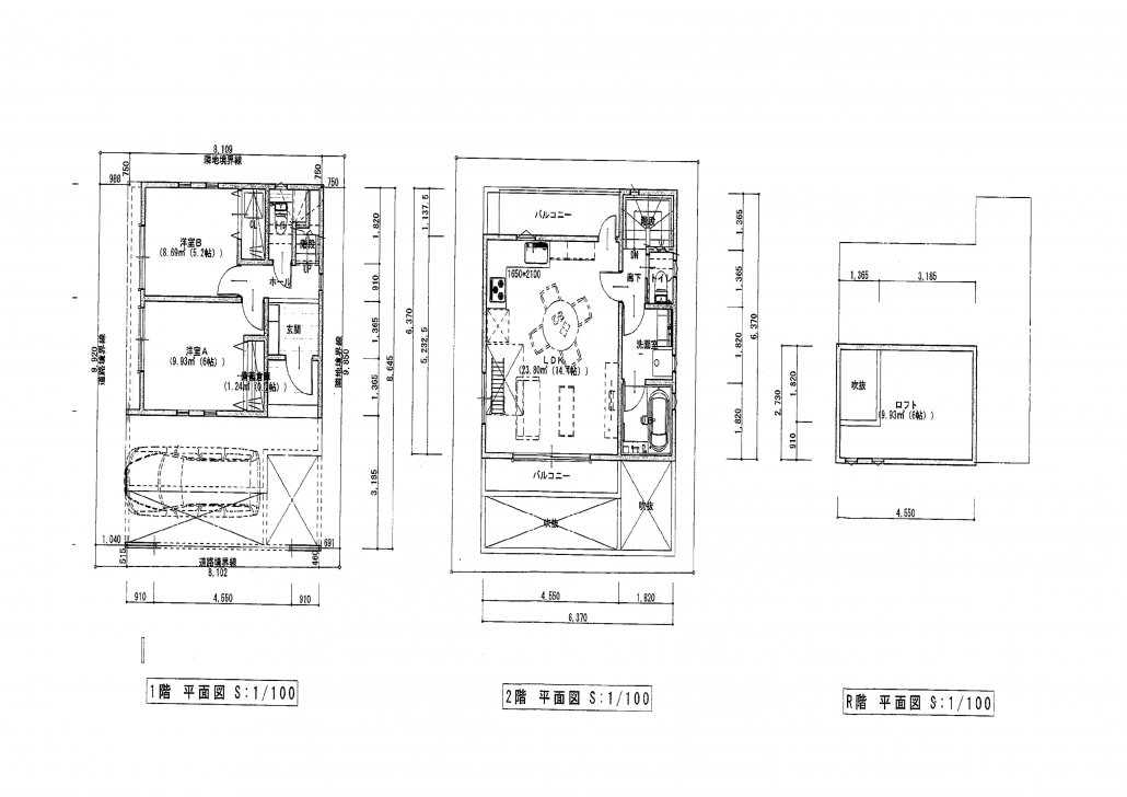
| 販売区画数 | 全1区画 今回販売1区画 | 土地面積 | 82.52㎡ (実測) |
| 接道状況 | 南 6.00M道路に8.00M接道 西 4.00M道路に9.90M接道 |
土地権利 | 所有権 |
| 都市計画 | 市街化区域 | 地目 | 宅地 |
| 用途地域 | 第一種低層住専 | 建ぺい率 | 50% |
| 容積率 | 80% | 建築条件 | 建築条件付き |
| 現況 | 更地 | 取引態様 | 媒介 |
| 学区 | 鵠南小学校 湘洋中学校 |
||
ACCESS MAP
アクセスマップ
ACCESS MAP
藤沢市鵠沼海岸5丁目4-31/
土地条件付きの物件詳細
土地条件付きの物件詳細















