PROPERTY DETAILS
PROPERTY DETAILS
茅ヶ崎市東海岸南5丁目
土地条件付き
SOLD OUT
SOLD OUT
PICKUP POINT
注目ポイント
PICKUP POINT
ご成約なりました。
ありがとうございました。
ありがとうございました。
PROPERTY
OVERVIEW
物件概要
PROPERTY
OVERVIEW
OVERVIEW
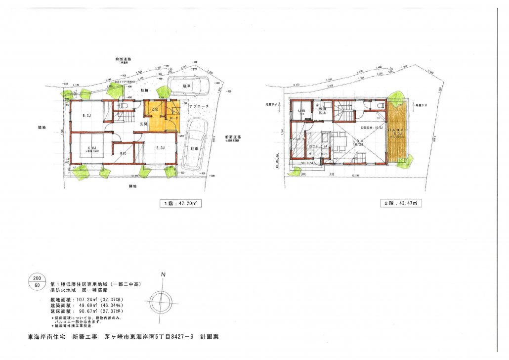
| 所在地 | 茅ヶ崎市東海岸南5丁目2-4 | ||
|---|---|---|---|
| 交通 | JR東海道本線「茅ヶ崎」駅 徒歩17分 | ||
| 価格 | SOLD OUT | ||
| 物件番号 | 21 | 物件種別 | 土地条件付き |
| 販売区画数 | 全1区画 今回販売1区画 | 土地面積 | 106.88㎡ (実測) |
| 接道状況 | 北 3.50M道路に11.80M接道 東 4.20M道路に8.30M接道 |
土地権利 | 所有権 |
| 都市計画 | 市街化区域 | 地目 | 宅地 |
| 用途地域 | 第二種中高層住専 (第一種低層住専) |
建ぺい率 | 60% (160%) |
| 容積率 | 50% (100%) | 建築条件 | 建築条件付き |
| 現況 | 更地 | 引渡し時期 | 相談 |
| 引渡し条件 | 現況渡し | 取引態様 | 媒介 |
| 学区 | 東海岸小学校小学校 茅ヶ崎一中中学校 |
||
ACCESS MAP
アクセスマップ
ACCESS MAP
茅ヶ崎市東海岸南5丁目2-4/
土地条件付きの物件詳細
土地条件付きの物件詳細











