PROPERTY DETAILS
PROPERTY DETAILS
茅ヶ崎市香川3丁目
新築一戸建て
SOLD OUT
SOLD OUT
EVENT INFO.
イベント開催情報
EVENT INFO.
【 現地見学会 】
10月4日(土)〜/10:00〜16:00
建物内覧できます、現地で陽当りの良さ、リビングの開放感をご確認ください!
PICKUP POINT
注目ポイント
PICKUP POINT
- イベント開催中
- 内覧可能物件
- 見学可能物件
- 陽当り良好
- 開放感良好
- 明るい南道路
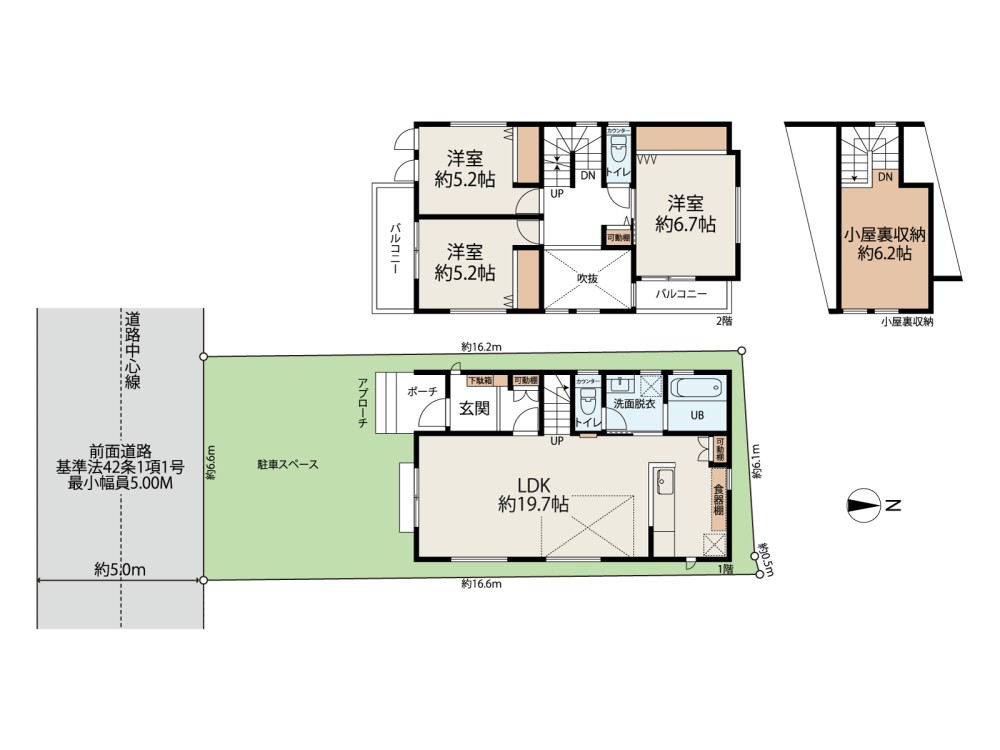
◆カースペース2台分並列で駐車場できます。
◆南道路幅員は5m、駐車も安心の広さと開放的な立地です。
◆A号棟リビング20帖超の広さと、勾配天井で陽当り良好です。
◆B号棟は1階19帖超の広いリビングは吹抜け付で、開放的です。
◆各棟大型ロフトもあり、収納豊富なプランになっています。
◆南道路幅員は5m、駐車も安心の広さと開放的な立地です。
◆A号棟リビング20帖超の広さと、勾配天井で陽当り良好です。
◆B号棟は1階19帖超の広いリビングは吹抜け付で、開放的です。
◆各棟大型ロフトもあり、収納豊富なプランになっています。
PHOTO ETC.
現地写真・関連画像・周辺施設など
PHOTO ETC.
PROPERTY
OVERVIEW
物件概要
PROPERTY
OVERVIEW
OVERVIEW
| 所在地 | 茅ヶ崎市香川3丁目23-3 | ||
|---|---|---|---|
| 交通 | JR相模線「香川」駅 徒歩6分 | ||
| 価格 | SOLD OUT | ||
| 物件番号 | 847 | 物件種別 | 新築一戸建て |
| 建物名称 | ビュウタウン香川3丁目 | 販売棟数 | 全2棟 今回販売2棟 |
| 土地面積 | 109.28㎡〜110.33㎡ (実測) | 建物面積 | 91.34㎡〜93.15㎡ |
| 間取 | 3SLDK | 建物構造 | 木造 2階建 |
| 完成 | 2025年9月完成予定 | 施工会社 | 株式会社曽我建設 |
| 接道状況 | 南 5.00M道路に8.00M接道 | 土地権利 | 所有権 |
| 都市計画 | 市街化区域 | 地目 | 宅地 |
| 用途地域 | 第一種中高層住専 | 建ぺい率 | 60% |
| 容積率 | 200% | 建築確認番号 | 2024SBC確01432Y、01433Y |
| 現況 | 建築中 | 駐車場 | 2台以上 |
| 引渡し時期 | 相談 | 取引態様 | 媒介 |
| 学区 | 香川小学校 550M 鶴が台中学校 1200M |
||
| 設備 | 上水道/公営水道 下水道/本下水 ガス/都市ガス 電気/東京電力 |
||
| こだわり項目 | フラット35S利用可、省エネ基準適合住宅 | ||
ACCESS MAP
アクセスマップ
ACCESS MAP
茅ヶ崎市香川3丁目23-3/
新築一戸建ての物件詳細
新築一戸建ての物件詳細